



März 2025
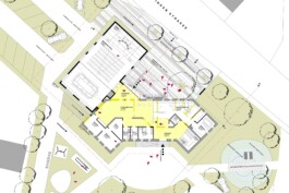
Das neue Projekt in Hinzenbach umfasst die Adaptierung des bestehenden Amtsgebäudes und den Neubau eines Mehrzwecksaals, welcher punktuell an den Bestand anschließt. Der Saal wird in Massivbauweise errichtet und erhält eine zeitgemäße Wärmedämmung sowie Holz-Alu-Fenster mit Sonnenschutz. Darüber hinaus ermöglicht eine mobile Trennwand eine multifunktionale Raumnutzung für Gemeinderatssitzungen, Trauungen oder Vereinstätigkeiten. Im Erdgeschoss des bestehenden Amtsgebäudes werden Räume zu Lager, Foyer und Sanitär umgewidmet. Zusätzlich werden die Bereiche für Verwaltung und Bürgerservice neu organisiert. Im Obergeschoss ist eine Modernisierung unter Beibehaltung der Bausubstanz vorgesehen. Die Außenanlagen wie Vorplatz und Parkplatz bleiben weitgehend erhalten, mit kleineren Anpassungen zur besseren Erschließung des neuen Saals. Die durch das räumliche Zusammenspiel von Alt- und Neubau entstehende „Ortsplatzfläche“ vor dem Gebäude wird multifunktional gestaltet, um unterschiedliche Nutzungen zu ermöglichen.